Conception de la micro-crèche
« Thuri’mômes »
Ce projet s’implante au coeur du village de Saint-Jean-de-Thurigneux et à proximité de l’école. Le projet de construction de micro-crèche de notre cliente a été soutenu par la commune, dépourvue jusqu’alors de structure de garde d’enfants en bas âge.
Notre mission a été de concevoir le bâtiment jusqu’au dépôt du permis de construire en respectant les règles d’accessibilité liées aux ERP. Situé au coeur de la Dombes dans le département de l’Ain, le bâtiment respecte l’architecture locale et s’intègre dans son environnement.
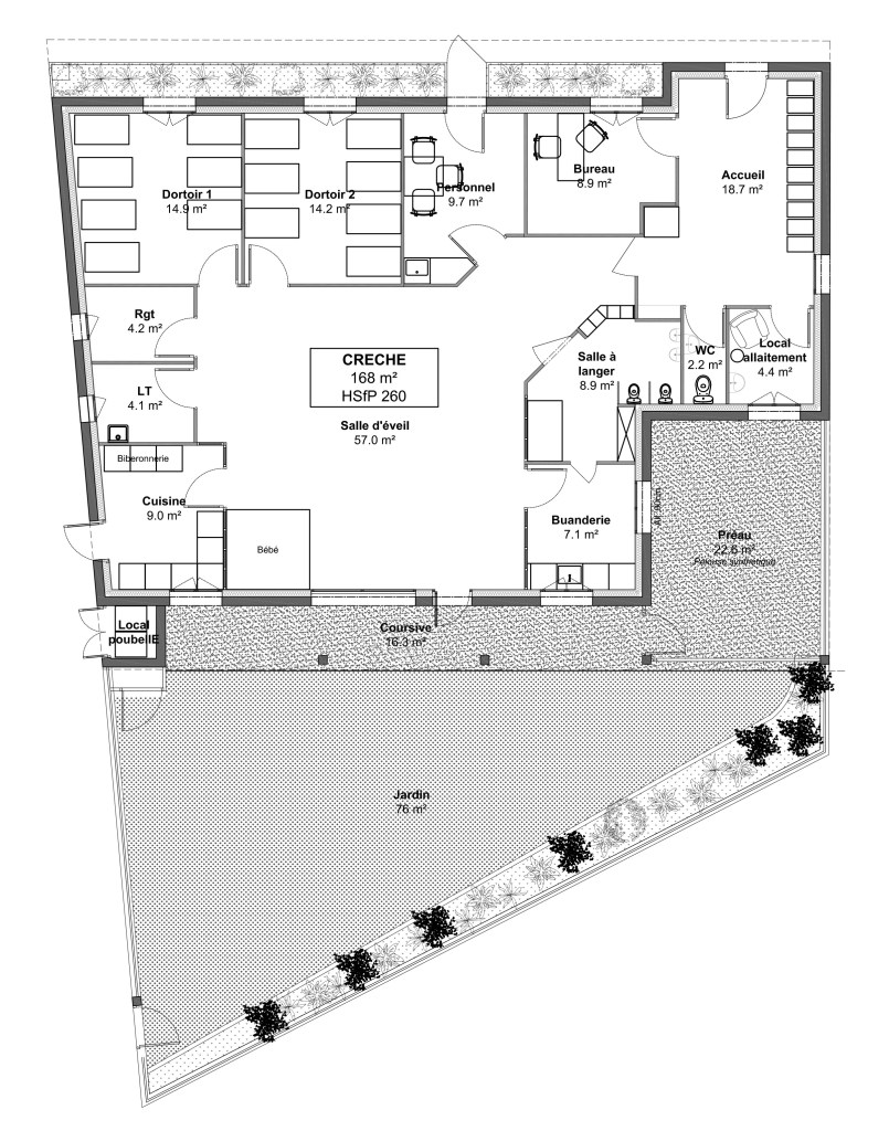
L’établissement peut accueillir 14 enfants. Il dispose d’un espace intérieur de 168m² dont 60m² de salle d’éveil lumineuse et un espace extérieur de 120m² dont 39m² abrités. Les différents espaces intérieurs complémentaires (buanderie, cuisine, salle à langer) ont été conçus de manière à conserver une vue globale sur la salle d’éveil afin de garantir une sécurité permanente des enfants.
Mission : APS/APD/PC-ERP
Année : 2022
Budget : 300 000€ HT
MOA : Caroline Chassaignon
Superficie des parcelles : 343m²
Surface de plancher : 168m²
Localisation : Saint-Jean-de-Thurigneux (01)








